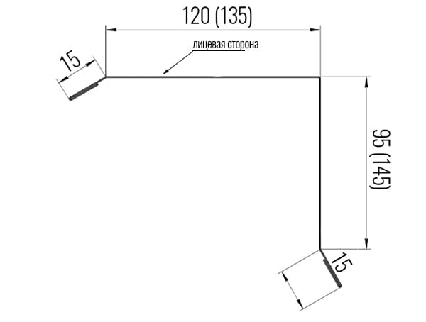
Торцевые планки 95х120х2000
Мы рады предложить Вам широкий выбор материалов от эконом до премиум класса по выгодным ценам. RoofMarket - все для кровли в одном месте!
-
Металлочерепица
-
Белорусская металлочерепица
-
МеталлПрофиль
- Монтеррей
- Супермонтеррей
- Макси
- Монтекристо
- Трамонтана
- Монтерроса
- Защитно-декоративные покрытия Металлпрофиль
- МКтрейд
-
Скайпрофиль
- Супермонтеррей
- Вилейская волна
- Защитно-декоративные покрытия Скайпрофиль
-
МеталлПрофиль
-
Российская
-
Grand Line
- Kvinta plus
- Classic
- Kredo
- Kamea
- Kvinta Uno
- Защитно-декоративные покрытия Grand Line
-
Grand Line
-
Польская
- Blachotrapez
-
Белорусская металлочерепица
- Модульная металлочерепица
- Композитная черепица
- Гибкая битумная черепица
- Металлопрофиль
- Ондулин
- Фальцевая кровля
- Водосточные системы
- Софиты для подшивки
- Подкровельные пленки
- Мансардные окна
- Вентиляционные выходы
- Комплектующие
- Сайдинг
- Фасадные панели
- Заборы и ограждения
- Ворота для ограждений
- Кровельные работы
Планка торцевая в Минске
Торцевая планка (еще ее называют ветровой) — металлическая планка, которая монтируется на торцах скатов крыши. Она прижимает кровельный материал, защищает его от ветровых нагрузок и попадания влаги под кровлю.
У нас вы можете заказать торцевые планки под свои размеры. Покрытие может быть матовое и глянцевое. Цвета по каталогу RAL.
Стандартные размеры:
95х120х2000
135х145х2000
95х95х2000
80х100х2000
90х110х2000
120х130х2000
150х100х2000
Если вам нужен нестандартный элемент — отправьте схематичный рисунок с нужными размерами, количеством и отправьте нам на viber, либо через кнопку Заказать Расчет.
Преимущества
торцевой (ветровой) планки:Изготовим доборные элементы кровли стандартные или по индивидуальным размерам из оцинкованной стали, покрытой полимерным покрытием.
Предотвращает задувание дождя и снега под кровлю
Защищает обрешётку и стропильную систему от намокания
Удерживает кровельное покрытие при сильных порывах ветра
Защищает торцы листов от коррозии
Придает аккуратный законченный внешний вид крыше
Отзывов к этому товару пока нету. Ваш станет первым!
ПОПУЛЯРНЫЕ
МАТЕРИАЛЫот: 42 руб.
от: 110 руб.
от: 21.47 руб.
от: 26.2 руб.
от: 37 руб.